- From
- AED 2,188,749
- Status
- On sale
- Handover
- Q4 2026
- Size
- 781–4,154 sqft
- Residences
- 214
- Construction
- 39% complete
- Furnishing
- no
- Service charge
- 18-20 AED/sqft
- Buildings
- 1
One by Binghatti is a 214-unit residential tower under development in Business Bay, Dubai, delivered by Binghatti Developers and scheduled for completion in Q4 2026.
# The Tower and Its Position in Business Bay
Business Bay sits on the southern edge of Downtown Dubai, separated from it by little more than the Dubai Canal. The district has matured considerably over the past decade, moving well past its early identity as a purely commercial address. Residential towers now line the waterfront and the interior streets, and the neighbourhood draws a cosmopolitan mix of professionals and investors who want proximity to the city's financial and commercial core without the price premium of Downtown itself.
One by Binghatti is a single tower within this context. Binghatti has built a recognisable presence across Dubai with a consistent architectural approach: articulated façades, balcony-heavy elevations that create texture and shadow, and an emphasis on natural light entering the interior. Construction is currently at 38.68% completion, with handover set for the final quarter of 2026.
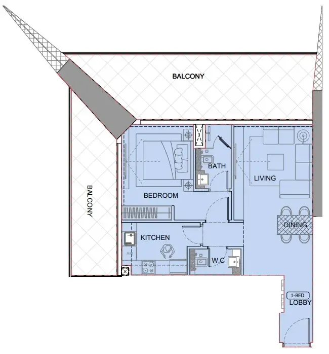
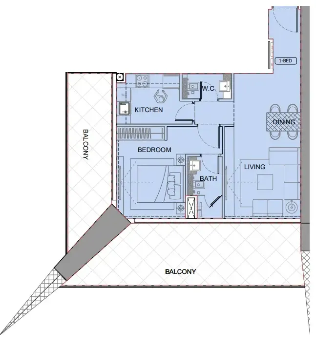
# Residences, Layouts and Scale
The 214 residences span studios through to three-bedroom configurations, with overall sizes running from approximately 781 square feet to just over 4,154 square feet. That range reflects a deliberate spread across buyer types.
Studios are priced from around AED 1.5 million and sit at 461 square feet. One-bedroom apartments occupy several distinct footprints: the smaller layouts begin at roughly 781 square feet, mid-range plans cluster around 1,030 to 1,041 square feet, and the larger one-bedrooms extend to approximately 1,240 square feet, with pricing across these units ranging broadly from AED 2.17 million to just under AED 3 million depending on floor and aspect.
Two-bedroom apartments are sized consistently at approximately 1,587 to 1,598 square feet, priced from AED 3.82 million to just over AED 4.18 million. A single three-bedroom unit occupies 4,154 square feet and is listed at AED 8.26 million, making it the outlier in the scheme: a significantly larger residence within an otherwise mid-scale building. The developer has not specified furnishing; units are delivered unfurnished. Service charges are quoted at AED 18 to 20 per square foot annually.
# Amenities Across the Podium
The facilities list runs to eight amenities. A swimming pool and jacuzzi cover the water-based leisure options. A sauna and steam room add a recovery layer. Sport provision includes a paddle court, a 3x3 basketball court, and a street soccer area, giving the building a pronounced bias toward active recreation. A BBQ area and a children's play area complete the offering.
The mix skews toward residents who are active and family-oriented rather than those seeking a spa-heavy, hotel-adjacent lifestyle. There is no gym listed in the confirmed amenities, which is worth a direct clarification with the agent before committing.
# Connectivity and the Business Bay Address
Business Bay Metro Station places the tower within Dubai's Red Line network, connecting residents directly to Union Station, the airport corridor, and the Marina end of the city. By road, the DIFC is a short drive south along Sheikh Zayed Road, and Downtown Dubai's retail and dining concentration sits just north across the canal.
Dubai International Airport is reachable in roughly 20 minutes by car under normal traffic conditions. Safa Park, one of the more appealing green spaces in this part of the city, is close to the western edge of Business Bay. The immediate neighbourhood contains a dense concentration of restaurants, supermarkets, and retail, reflecting how thoroughly Business Bay has developed beyond its original commercial brief.
# Who This Building Suits and Where It Sits in the Market
One by Binghatti targets the segment of the Dubai market that prioritises location and mid-luxury specification over resort-scale amenity. The price points, from AED 2.19 million for a one-bedroom entry to AED 4.19 million for a two-bedroom, position it below the premium waterfront product in the district but above the commodity-grade towers that have proliferated across Business Bay over the past several years.
For a European or GCC investor, the appeal is straightforward: a recognised developer, a central address, and a handover timeline that keeps capital deployment reasonably short. Owner-occupiers who want walkable access to DIFC and Downtown without paying Downtown pricing will find the one- and two-bedroom range credible. The three-bedroom, at over 4,000 square feet, reads more as an anomaly than a statement, but for a buyer needing that footprint in this district, the pricing relative to comparable Downtown inventory is likely to be favourable.
Gallery
Residences
63 unit configurations available at One by Binghatti.
- Size
- 462
- Price (AED)
- AED 1,504,499–AED 1,512,999
- Price (USD)
- $409,666–$411,980
- Size
- 462
- Price (AED)
- AED 1,529,999
- Price (USD)
- $416,609
- Size
- 462
- Price (AED)
- AED 1,572,499
- Price (USD)
- $428,182
- Size
- 462
- Price (AED)
- AED 1,589,499–AED 1,597,999
- Price (USD)
- $432,811–$435,125
- Size
- 462
- Price (AED)
- AED 1,495,999
- Price (USD)
- $407,351
- Size
- 1,042
- Price (AED)
- AED 2,496,874–AED 2,762,499
- Price (USD)
- $679,884–$752,212
- Size
- 1,240
- Price (AED)
- AED 2,613,749–AED 2,741,249
- Price (USD)
- $711,708–$746,425
- Size
- 830
- Price (AED)
- AED 2,347,111
- Price (USD)
- $639,104
- Size
- 1,042–1,223
- Price (AED)
- AED 2,592,499–AED 2,783,749
- Price (USD)
- $705,922–$757,998
- Size
- 1,031
- Price (AED)
- AED 2,528,749–AED 2,719,999
- Price (USD)
- $688,563–$740,639
- Size
- 1,223
- Price (AED)
- AED 2,592,499–AED 2,634,999
- Price (USD)
- $705,922–$717,494
- Size
- 1,031
- Price (AED)
- AED 2,698,749
- Price (USD)
- $734,853
- Size
- 781
- Price (AED)
- AED 2,167,499
- Price (USD)
- $590,197
- Size
- 1,031
- Price (AED)
- AED 2,656,249–AED 2,741,249
- Price (USD)
- $723,280–$746,425
- Size
- 1,042
- Price (AED)
- AED 2,741,249–AED 2,762,499
- Price (USD)
- $746,425–$752,212
- Size
- 829
- Price (AED)
- AED 2,337,499
- Price (USD)
- $636,487
- Size
- 1,031
- Price (AED)
- AED 2,698,749–AED 2,719,999
- Price (USD)
- $734,853–$740,639
- Size
- 1,042
- Price (AED)
- AED 2,741,249
- Price (USD)
- $746,425
- Size
- 1,240
- Price (AED)
- AED 2,656,249
- Price (USD)
- $723,280
- Size
- 1,223
- Price (AED)
- AED 2,613,749
- Price (USD)
- $711,708
- Size
- 1,031
- Price (AED)
- AED 2,719,999–AED 2,741,249
- Price (USD)
- $740,639–$746,425
- Size
- 781
- Price (AED)
- AED 2,167,499
- Price (USD)
- $590,197
- Size
- 829
- Price (AED)
- AED 2,316,249–AED 2,358,749
- Price (USD)
- $630,700–$642,273
- Size
- 1,031
- Price (AED)
- AED 2,741,249–AED 2,804,999
- Price (USD)
- $746,425–$763,784
- Size
- 1,042–1,240
- Price (AED)
- AED 2,656,249–AED 2,826,249
- Price (USD)
- $723,280–$769,570
- Size
- 1,223
- Price (AED)
- AED 2,592,499–AED 2,634,999
- Price (USD)
- $705,922–$717,494
- Size
- 1,229
- Price (AED)
- AED 2,656,249
- Price (USD)
- $723,280
- Size
- 1,198
- Price (AED)
- AED 2,571,249
- Price (USD)
- $700,135
- Size
- 1,042
- Price (AED)
- AED 2,826,249–AED 2,932,499
- Price (USD)
- $769,570–$798,502
- Size
- 1,240
- Price (AED)
- AED 2,677,499–AED 2,741,249
- Price (USD)
- $729,067–$746,425
- Size
- 1,031
- Price (AED)
- AED 2,804,999–AED 2,826,249
- Price (USD)
- $763,784–$769,570
- Size
- 1,042
- Price (AED)
- AED 2,826,249–AED 2,847,499
- Price (USD)
- $769,570–$775,357
- Size
- 1,031–1,031
- Price (AED)
- AED 2,826,249–AED 2,911,249
- Price (USD)
- $769,570–$792,715
- Size
- 829
- Price (AED)
- AED 2,294,999–AED 2,316,249
- Price (USD)
- $624,914–$630,700
- Size
- 1,229
- Price (AED)
- AED 2,698,749
- Price (USD)
- $734,853
- Size
- 1,240
- Price (AED)
- AED 2,741,249
- Price (USD)
- $746,425
- Size
- 1,240
- Price (AED)
- AED 2,741,249–AED 2,762,499
- Price (USD)
- $746,425–$752,212
- Size
- 1,031
- Price (AED)
- AED 2,932,499
- Price (USD)
- $798,502
- Size
- 1,042
- Price (AED)
- AED 2,953,749–AED 2,996,249
- Price (USD)
- $804,288–$815,860
- Size
- 1,042
- Price (AED)
- AED 2,698,749
- Price (USD)
- $734,853
- Size
- 1,042
- Price (AED)
- AED 2,698,749
- Price (USD)
- $734,853
- Size
- 781
- Price (AED)
- AED 2,188,749
- Price (USD)
- $595,983
- Size
- 781
- Price (AED)
- AED 2,209,999
- Price (USD)
- $601,769
- Size
- 829
- Price (AED)
- AED 2,337,499–AED 2,379,999
- Price (USD)
- $636,487–$648,059
- Size
- 1,042
- Price (AED)
- AED 2,496,874
- Price (USD)
- $679,884
- Size
- 1,223
- Price (AED)
- AED 2,592,499–AED 2,634,999
- Price (USD)
- $705,922–$717,494
- Size
- 1,240
- Price (AED)
- AED 2,677,499
- Price (USD)
- $729,067
- Size
- 1,031
- Price (AED)
- AED 2,762,499
- Price (USD)
- $752,212
- Size
- 1,031
- Price (AED)
- AED 2,762,499–AED 2,783,749
- Price (USD)
- $752,212–$757,998
- Size
- 1,042
- Price (AED)
- AED 2,783,749–AED 2,804,999
- Price (USD)
- $757,998–$763,784
- Size
- 1,598
- Price (AED)
- AED 4,079,999–AED 4,101,249
- Price (USD)
- $1,110,959–$1,116,745
- Size
- 1,587
- Price (AED)
- AED 3,824,999–AED 3,867,499
- Price (USD)
- $1,041,524–$1,053,097
- Size
- 1,598
- Price (AED)
- AED 4,101,249–AED 4,122,499
- Price (USD)
- $1,116,745–$1,122,532
- Size
- 1,587
- Price (AED)
- AED 3,846,249–AED 3,867,499
- Price (USD)
- $1,047,310–$1,053,097
- Size
- 1,587
- Price (AED)
- AED 3,867,499
- Price (USD)
- $1,053,097
- Size
- 1,588
- Price (AED)
- AED 4,101,249
- Price (USD)
- $1,116,745
- Size
- 1,587
- Price (AED)
- AED 3,909,999
- Price (USD)
- $1,064,669
- Size
- 1,587
- Price (AED)
- AED 3,931,249–AED 3,952,499
- Price (USD)
- $1,070,455–$1,076,242
- Size
- 1,588
- Price (AED)
- AED 4,186,249
- Price (USD)
- $1,139,890
- Size
- 1,598
- Price (AED)
- AED 4,079,999
- Price (USD)
- $1,110,959
- Size
- 1,598
- Price (AED)
- AED 4,143,749
- Price (USD)
- $1,128,318
- Size
- 1,587
- Price (AED)
- AED 4,143,749
- Price (USD)
- $1,128,318
- Size
- 4,154
- Price (AED)
- AED 8,263,888
- Price (USD)
- $2,250,207
Payment plan
- Step 120%On booking
- Step 250%During construction
- Step 330%Upon Handover
Payment plan worked out
Enter a target price to see how the payment stages land against your budget.
| Stage | % | AED |
|---|---|---|
| On booking | 20% | AED 437,750 |
| During construction | 50% | AED 1,094,375 |
| Upon Handover | 30% | AED 656,625 |
| Total | 100% | AED 2,188,749 |
Indicative only. Your advisor will confirm the final numbers, including 4% DLD, trustee, admin, mortgage and developer-level charges.
Amenities








Documents
- Escrow number
- 0011370621089
- Service charge
- 18-20 AED/sqft
- Furnishing
- no
- Construction start
- 2024-03-01
- Construction end
- 2026-12-31
- Residences
- 214
- Buildings
- 1
- Readiness
- 39%
- Tower
Studio, 1, 2, 3 bedroom apartments & 3 bedroom villa & 4 bedroom penthouses
- 3 BR apartment2 spaces
- 3 BR villas2 spaces
- 4 BR penthouse2 spaces
- 2 BR apartment1 space
- 1 BR apartment1 space
- apartment1 space
Frequently asked
Who is the developer of One by Binghatti?+
Binghatti
Where is One by Binghatti located?+
One by Binghatti is located in Business Bay, Dubai, United Arab Emirates.
When is One by Binghatti handing over?+
Handover is scheduled for Q4 2026; the project is 39% complete.
What is the price of One by Binghatti?+
Prices at One by Binghatti currently range from AED 2,188,749 to AED 8,263,888.
Is One by Binghatti registered with escrow?+
Yes, One by Binghatti has escrow number 0011370621089 with the Dubai Land Department.
Request brochure, availability or a viewing.
A JRE advisor will respond within one business hour with the current brochure, floor plans, unit availability and payment plan for One by Binghatti.



