
- From
- AED 808,468
- Status
- On sale
- Handover
- TBC
- Size
- 462–2,762 sqft
- Residences
- 47
- Construction
- 0% complete
- Furnishing
- yes
- Service charge
- 16 AED/sqft
- Buildings
- 1
Tresora by Wadan is a furnished residential building currently under construction in Jumeirah Village Circle, developed by WADAN Developments. The project comprises 47 apartments across a single tower, with prices running from approximately AED 808,000 for studios to AED 2.54 million for the largest two-bedroom units.
# The tower and its position in Jumeirah Village Circle
Jumeirah Village Circle occupies a central corridor of new Dubai, bounded by Al Khail Road to the east and Sheikh Mohammed Bin Zayed Road to the west. Its circular street plan, parks and low-to-mid-rise scale give it a residential texture that distinguishes it from the denser corridors of Business Bay or Downtown. Tresora sits within this context as a mixed-use building, incorporating residential apartments alongside workspaces and retail at ground level.
The architectural language, as described by the developer, favours clean horizontal lines and layered balconies, with integrated greenery as part of the facade composition. At 47 units, the building is deliberately intimate by JVC standards, where larger blocks of several hundred apartments are common. That scale has practical consequences: fewer residents sharing lifts, amenity decks and car park access.
# Residences, layouts and floor areas
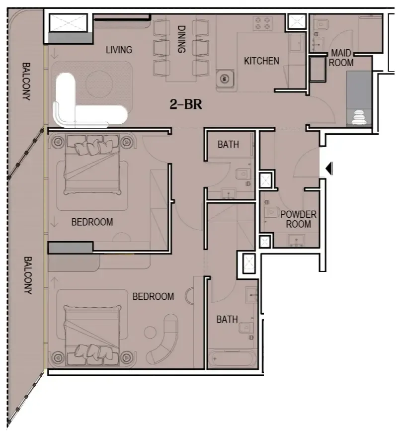
The unit mix covers studios, one-bedroom and two-bedroom apartments. Studios range from roughly 454 sq ft to 576 sq ft, priced broadly between AED 793,000 and AED 941,000. One-bedroom apartments occupy a tighter band, from around 721 sq ft to 851 sq ft, with prices from approximately AED 1.12 million to AED 1.36 million. The two-bedroom category is where the range widens considerably.
Most two-bedroom units sit between 1,327 sq ft and 1,434 sq ft, priced from AED 1.84 million. One outlier stands apart: a single two-bedroom apartment of 2,762 sq ft, listed at AED 2.54 million. At that floor area, it functions more like a lateral apartment than a conventional flat, and likely carries a significant private terrace or duplex configuration, though the specifics are not confirmed in published data.
All units are delivered furnished. The service charge is set at AED 16 per sq ft annually.
# Amenities and shared facilities
The amenity programme is compact but deliberately curated toward wellness. The building includes a gym, yoga studio, jacuzzi, cold plunge pool and a main pool deck, alongside a kids' pool and splash zone. A BBQ area and co-working space complete the list.
The cold plunge-to-jacuzzi combination is a detail worth remarking on. It signals a developer attuned to the recovery-focused wellness habits that have become standard expectations among a younger, health-conscious buyer demographic, the kind of specification that until recently appeared mainly in higher-ticket Downtown or Dubai Marina buildings.
Co-working space on-site reflects the mixed-use ambition of the project. For a resident who works flexibly or runs a small business, it removes the friction of commuting to a rented desk elsewhere in the city.
# JVC and its road connections
JVC's central location means that Al Khail Road, one of Dubai's main north-south arterials, is accessible within minutes. Dubai Marina and JBR sit roughly 15 minutes by car in normal traffic; Mall of the Emirates is a similar drive north along Sheikh Zayed Road. The community itself has accumulated a reasonable density of retail, clinics and schools over the past decade, reducing dependency on longer journeys for everyday needs.
The area lacks a metro station, and public transport options within the circle remain limited. Residents without a car, or those arriving from abroad expecting London or Singapore-style connectivity, should factor that in.
# Who this building is built for
At an entry price below AED 800,000 for a furnished studio, Tresora positions itself at a point in the JVC market where owner-occupiers and buy-to-let investors occupy the same bracket. The rental market in JVC has strengthened over the past two to three years as residents priced out of more central neighbourhoods moved further inland, and furnished units in a building with a hotel-adjacent amenity stack tend to attract short-term and corporate tenants willing to pay a premium over the district average.
For a UK or European buyer, the AED price range translates to roughly £175,000 to £550,000 at prevailing rates, which sits comfortably within the bracket that Dubai regularly draws from investors seeking yield over capital appreciation. The caveat is construction: with readiness at zero per cent and no confirmed completion date published, buyers are acquiring off-plan. That demands scrutiny of the escrow arrangements and payment schedule before committing.
Gallery
Residences
24 unit configurations available at Tresora by Wadan.
- Size
- 454–462
- Price (AED)
- AED 792,805–AED 826,366
- Price (USD)
- $215,876–$225,014
- Size
- 478–486
- Price (AED)
- AED 806,339–AED 843,512
- Price (USD)
- $219,561–$229,683
- Size
- 482
- Price (AED)
- AED 851,781–AED 868,321
- Price (USD)
- $231,934–$236,438
- Size
- 469
- Price (AED)
- AED 853,777
- Price (USD)
- $232,478
- Size
- 515
- Price (AED)
- AED 866,582
- Price (USD)
- $235,965
- Size
- 576
- Price (AED)
- AED 932,241
- Price (USD)
- $253,843
- Size
- 576
- Price (AED)
- AED 941,205
- Price (USD)
- $256,284
- Size
- 462
- Price (AED)
- AED 792,616
- Price (USD)
- $215,824
- Size
- 469
- Price (AED)
- AED 845,645
- Price (USD)
- $230,264
- Size
- 576
- Price (AED)
- AED 896,385
- Price (USD)
- $244,080
- Size
- 836
- Price (AED)
- AED 1,268,177–AED 1,280,858
- Price (USD)
- $345,317–$348,770
- Size
- 721
- Price (AED)
- AED 1,158,770
- Price (USD)
- $315,526
- Size
- 723
- Price (AED)
- AED 1,118,462–AED 1,162,757
- Price (USD)
- $304,550–$316,611
- Size
- 842
- Price (AED)
- AED 1,277,007
- Price (USD)
- $347,721
- Size
- 851
- Price (AED)
- AED 1,303,462
- Price (USD)
- $354,924
- Size
- 851
- Price (AED)
- AED 1,355,085
- Price (USD)
- $368,981
- Size
- 829
- Price (AED)
- AED 1,258,390
- Price (USD)
- $342,652
- Size
- 793
- Price (AED)
- AED 1,263,684
- Price (USD)
- $344,093
- Size
- 1,327
- Price (AED)
- AED 1,926,180
- Price (USD)
- $524,487
- Size
- 1,327
- Price (AED)
- AED 1,835,528–AED 1,908,906
- Price (USD)
- $499,803–$519,783
- Size
- 1,360
- Price (AED)
- AED 1,913,084–AED 2,008,685
- Price (USD)
- $520,921–$546,953
- Size
- 1,361
- Price (AED)
- AED 1,914,588–AED 2,010,264
- Price (USD)
- $521,330–$547,382
- Size
- 1,434
- Price (AED)
- AED 1,968,082–AED 2,005,205
- Price (USD)
- $535,897–$546,005
- Size
- 2,762
- Price (AED)
- AED 2,543,090
- Price (USD)
- $692,468
Payment plan
- Step 120%On booking
- Step 230%During construction
- Step 350%Upon Handover
- Step 120%On booking
- Step 240%During construction
- Step 310%Upon Handover
- Step 430%Within 3 years PH
Payment plan worked out
Enter a target price to see how the payment stages land against your budget.
| Stage | % | AED |
|---|---|---|
| On booking | 20% | AED 161,694 |
| During construction | 30% | AED 242,540 |
| Upon Handover | 50% | AED 404,234 |
| Total | 100% | AED 808,468 |
Indicative only. Your advisor will confirm the final numbers, including 4% DLD, trustee, admin, mortgage and developer-level charges.
Amenities


Location
Set in JVC (Jumeirah Village Circle), Dubai. Explore more in our JVC (Jumeirah Village Circle) guide.
Documents
- Service charge
- 16 AED/sqft
- Furnishing
- yes
- Construction start
- 2026-02-01
- Construction end
- 2028-03-31
- Residences
- 47
- Buildings
- 1
- Readiness
- 0%
- apartment1 space
- 1 BR apartment1 space
- 2 BR apartment1 space
Frequently asked
Who is the developer of Tresora by Wadan?+
WADAN Developments
Where is Tresora by Wadan located?+
Tresora by Wadan is located in JVC (Jumeirah Village Circle), Dubai, United Arab Emirates.
When is Tresora by Wadan handing over?+
Handover is scheduled for TBC; the project is 0% complete.
What is the price of Tresora by Wadan?+
Prices at Tresora by Wadan currently range from AED 808,468 to AED 2,543,090.
Is Tresora by Wadan registered with escrow?+
JRE will confirm escrow registration on request.
Request brochure, availability or a viewing.
A JRE advisor will respond within one business hour with the current brochure, floor plans, unit availability and payment plan for Tresora by Wadan.


