
- From
- AED 0
- Status
- Sold out
- Handover
- Q3 2027
- Size
- from 0 sqft
- Residences
- 48
- Construction
- 1% complete
- Furnishing
- no
- Service charge
- 11-12 AED/sqft
- Buildings
- 1
The Boulevard is a 48-unit residential building by Prestige One Developments, situated within Dubailand Residence Complex and scheduled for completion in Q3 2027.
# A Single Building in a District Still Taking Shape
Dubailand Residence Complex sits in the broader Dubailand corridor, a district that has grown incrementally over the past decade from a patchwork of master-plan ambitions into a functioning residential address. The Boulevard occupies a single building here, modest in scale by Dubai standards, which tends to mean tighter community and lower service-charge overhead. At 11–12 AED per square foot annually, running costs sit at a level that buy-to-let investors will find straightforward to underwrite.
The architecture, as described by the developer, takes a contemporary approach: broad proportions, light tones, and generous atrium space. The building reads as mid-rise rather than tower-scale, which suits the residential character of the surrounding district.
# Studios and Two-Bedroom Apartments, Across a Wide Size Range
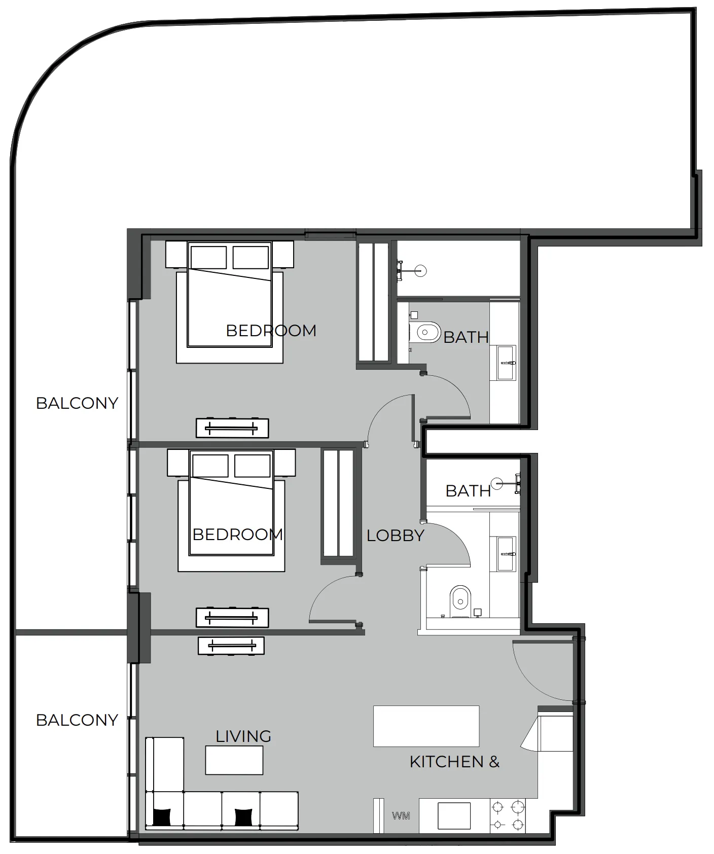
The 48 residences divide between studios and two-bedroom apartments. There are no one-bedroom units in the recorded breakdown.
Studios range from approximately 438 sq ft to 535 sq ft, with prices running from AED 725,000 to AED 811,000. The spread in pricing across nearly identical footprints reflects floor position and outlook rather than any meaningful layout variation. At roughly AED 1,550–1,700 per square foot, these sit at the accessible end of Dubai's off-plan market.
Two-bedroom apartments cover considerably more ground. Sizes run from just over 1,025 sq ft to nearly 1,488 sq ft, and prices range from AED 1,471,000 to AED 1,832,000. The variation here is more meaningful: a 1,025 sq ft two-bedroom and a 1,488 sq ft two-bedroom are meaningfully different homes, and buyers should examine specific unit plans carefully. The developer notes equipped kitchens as a standard inclusion. The building is delivered unfurnished.
# Amenity Floors Built Around Multiple Use Cases
For a 48-unit building, the amenity list is long. Prestige One has positioned The Boulevard partly on its communal programming: a rooftop swimming pool, a rooftop cinema, and a rooftop co-working space occupy the upper floors, while lower levels contain a gaming zone, a cinelounge, a podcast room, a creativity studio, and a children's area called the Little Explorers' Zone.
The community lounge and atrium provide more conventional social space. The Prestige Fitness Center rounds out the health provision.
The density of amenity per resident is high. Whether that translates into daily utility depends on the eventual resident mix, but for a buyer targeting young professionals or small families, the offer is deliberately broad.
# Distances from the Centre and What That Means in Practice
Downtown Dubai lies 19.5 km away; Dubai Mall is 21.2 km. Jumeirah Beach is 26.1 km, and Dubai International Airport 27.4 km. These are not short distances by any measure, and in peak-hour traffic they extend further.
The German International School Dubai (DISD) is 4.8 km away, which places The Boulevard within plausible school-run distance for German-speaking families or those seeking an international curriculum with European accreditation.
Dubailand as a district continues to develop its own internal infrastructure, and residents here rely on private transport for most journeys. That context matters for any buyer calibrating lifestyle expectations against price point.
# Who This Building Suits, and Why Timing Matters
The Boulevard is currently sold out, which removes the question of entry pricing from the immediate decision. For prospective buyers tracking resale opportunities or monitoring Prestige One's pipeline, the project offers a data point on what the developer produces at the sub-AED 2 million price band.
The profile this building was designed for is clear: single professionals or couples drawn to an amenity-rich environment at a price point that remains below Dubai's more central submarkets, or investors seeking a compact two-bedroom in a district where land costs keep headline prices lower than on the coast or near the creek. With completion set for Q3 2027 and construction underway, the project sits in the middle phase of its delivery cycle, far enough along to assess credibility, close enough to completion to attract resale interest from original off-plan buyers.
Gallery
Residences
48 unit configurations available at The Boulevard.
- Size
- 470
- Price (AED)
- AED 758,000
- Price (USD)
- $206,398
- Size
- 457
- Price (AED)
- AED 754,000
- Price (USD)
- $205,309
- Size
- 457
- Price (AED)
- AED 771,000
- Price (USD)
- $209,938
- Size
- 535
- Price (AED)
- AED 793,000
- Price (USD)
- $215,929
- Size
- 442
- Price (AED)
- AED 770,000
- Price (USD)
- $209,666
- Size
- 470
- Price (AED)
- AED 770,000
- Price (USD)
- $209,666
- Size
- 457
- Price (AED)
- AED 770,000
- Price (USD)
- $209,666
- Size
- 438
- Price (AED)
- AED 777,000
- Price (USD)
- $211,572
- Size
- 477
- Price (AED)
- AED 775,000
- Price (USD)
- $211,027
- Size
- 466
- Price (AED)
- AED 775,000
- Price (USD)
- $211,027
- Size
- 466
- Price (AED)
- AED 775,000
- Price (USD)
- $211,027
- Size
- 463
- Price (AED)
- AED 775,000
- Price (USD)
- $211,027
- Size
- 535
- Price (AED)
- AED 805,000
- Price (USD)
- $219,196
- Size
- 466
- Price (AED)
- AED 775,000
- Price (USD)
- $211,027
- Size
- 457
- Price (AED)
- AED 775,000
- Price (USD)
- $211,027
- Size
- 457
- Price (AED)
- AED 775,000
- Price (USD)
- $211,027
- Size
- 457
- Price (AED)
- AED 781,000
- Price (USD)
- $212,661
- Size
- 457
- Price (AED)
- AED 781,000
- Price (USD)
- $212,661
- Size
- 466
- Price (AED)
- AED 781,000
- Price (USD)
- $212,661
- Size
- 466
- Price (AED)
- AED 781,000
- Price (USD)
- $212,661
- Size
- 464
- Price (AED)
- AED 781,000
- Price (USD)
- $212,661
- Size
- 466
- Price (AED)
- AED 781,000
- Price (USD)
- $212,661
- Size
- 466
- Price (AED)
- AED 781,000
- Price (USD)
- $212,661
- Size
- 466
- Price (AED)
- AED 781,000
- Price (USD)
- $212,661
- Size
- 463
- Price (AED)
- AED 781,000
- Price (USD)
- $212,661
- Size
- 534
- Price (AED)
- AED 811,000
- Price (USD)
- $220,830
- Size
- 470
- Price (AED)
- AED 781,000
- Price (USD)
- $212,661
- Size
- 457
- Price (AED)
- AED 781,000
- Price (USD)
- $212,661
- Size
- 457
- Price (AED)
- AED 781,000
- Price (USD)
- $212,661
- Size
- 438
- Price (AED)
- AED 781,000
- Price (USD)
- $212,661
- Size
- 470
- Price (AED)
- AED 725,000
- Price (USD)
- $197,413
- Size
- 1,447
- Price (AED)
- AED 1,493,000
- Price (USD)
- $406,535
- Size
- 1,214
- Price (AED)
- AED 1,638,000
- Price (USD)
- $446,017
- Size
- 1,484
- Price (AED)
- AED 1,750,000
- Price (USD)
- $476,514
- Size
- 1,488
- Price (AED)
- AED 1,817,000
- Price (USD)
- $494,758
- Size
- 1,214
- Price (AED)
- AED 1,667,000
- Price (USD)
- $453,914
- Size
- 1,484
- Price (AED)
- AED 1,832,000
- Price (USD)
- $498,842
- Size
- 1,214
- Price (AED)
- AED 1,680,000
- Price (USD)
- $457,454
- Size
- 1,349
- Price (AED)
- AED 1,768,000
- Price (USD)
- $481,415
- Size
- 1,214
- Price (AED)
- AED 1,694,000
- Price (USD)
- $461,266
- Size
- 1,484
- Price (AED)
- AED 1,807,000
- Price (USD)
- $492,035
- Size
- 1,125
- Price (AED)
- AED 1,549,000
- Price (USD)
- $421,783
- Size
- 1,025
- Price (AED)
- AED 1,471,000
- Price (USD)
- $400,544
- Size
- 1,484
- Price (AED)
- AED 1,637,000
- Price (USD)
- $445,745
- Size
- 1,214
- Price (AED)
- AED 1,556,000
- Price (USD)
- $423,689
- Size
- 1,259
- Price (AED)
- AED 1,582,000
- Price (USD)
- $430,769
- Size
- 1,488
- Price (AED)
- AED 1,679,000
- Price (USD)
- $457,181
- Size
- 1,484
- Price (AED)
- AED 1,693,000
- Price (USD)
- $460,993
Payment plan
- Step 120%On booking
- Step 235%During construction
- Step 310%Upon Handover
- Step 435%Within 35 months PH
- Step 120%On booking
- Step 245%During construction
- Step 335%Upon Handover
Payment plan worked out
Enter a target price to see how the payment stages land against your budget.
| Stage | % | AED |
|---|---|---|
| On booking | 20% | AED 0 |
| During construction | 35% | AED 0 |
| Upon Handover | 10% | AED 0 |
| Within 35 months PH | 35% | AED 0 |
| Total | 100% | AED 0 |
Indicative only. Your advisor will confirm the final numbers, including 4% DLD, trustee, admin, mortgage and developer-level charges.
Amenities











Location
Set in Dubailand Residence Complex, Dubai. Explore more in our Dubailand Residence Complex guide.
- Al Quoz Park23.3 km
- Jumeirah Beach26.1 km
- Dubai International Airport27.4 km
- Downtown Dubai19.5 km
- German International School Dubai DISD4.8 km
- Dubai Mall21.2 km
Documents
- Escrow number
- 0405907199405
- Service charge
- 11-12 AED/sqft
- Furnishing
- no
- Construction start
- 2025-07-01
- Construction end
- 2027-09-30
- Residences
- 48
- Buildings
- 1
- Readiness
- 1%
- Tower
Studio, 1 & 2 bedroom apartments
- 2 BR apartment1 space
- 1 BR apartment1 space
- apartment1 space
Frequently asked
Who is the developer of The Boulevard?+
Prestige One Developments
Where is The Boulevard located?+
The Boulevard is located in Dubailand Residence Complex, Dubai, United Arab Emirates.
When is The Boulevard handing over?+
Handover is scheduled for Q3 2027; the project is 1% complete.
What is the price of The Boulevard?+
Prices at The Boulevard start from AED 0.
Is The Boulevard registered with escrow?+
Yes, The Boulevard has escrow number 0405907199405 with the Dubai Land Department.
Request brochure, availability or a viewing.
A JRE advisor will respond within one business hour with the current brochure, floor plans, unit availability and payment plan for The Boulevard.


