
- From
- AED 1,491,000
- Status
- On sale
- Handover
- Q2 2027
- Size
- 976–1,721 sqft
- Residences
- 69
- Construction
- 18% complete
- Furnishing
- only kitchen
- Service charge
- 12-13 AED/sqft
- Buildings
- 1
Golf Place is a residential building by Prestige One Developments, situated within Dubai Sports City and scheduled for handover in Q2 2027. The project comprises 69 apartments across a single tower, ranging from one to three bedrooms, currently under construction at 17.61 per cent completion.
# The tower and its position in Dubai Sports City
Dubai Sports City occupies a distinct pocket of new Dubai, planned around the Els Club golf course and the Dubai International Stadium. The district sits at a remove from the density of Downtown and Business Bay, which gives it a lower skyline and more open ground-level feel than most of the city's newer residential clusters.
Golf Place addresses the golf course directly. The tower is designed to capitalise on those green views, with the building's orientation and proportions calibrated to maximise sightlines across the fairways. As a single building of 69 units, the project sits at a scale that keeps common areas and lift lobbies manageable, without the anonymity that larger towers can carry.
Construction is progressing, with funds held under escrow account 0405885629906 in accordance with Dubai Land Department requirements.
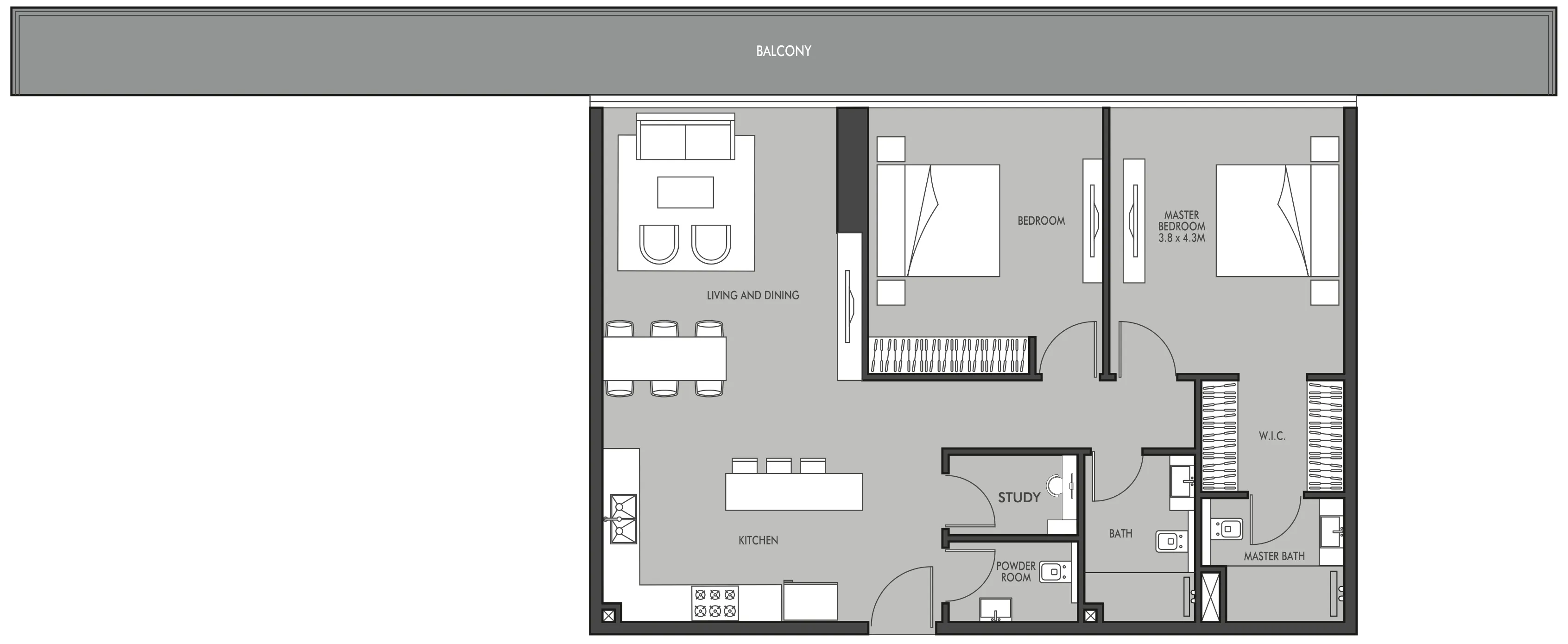
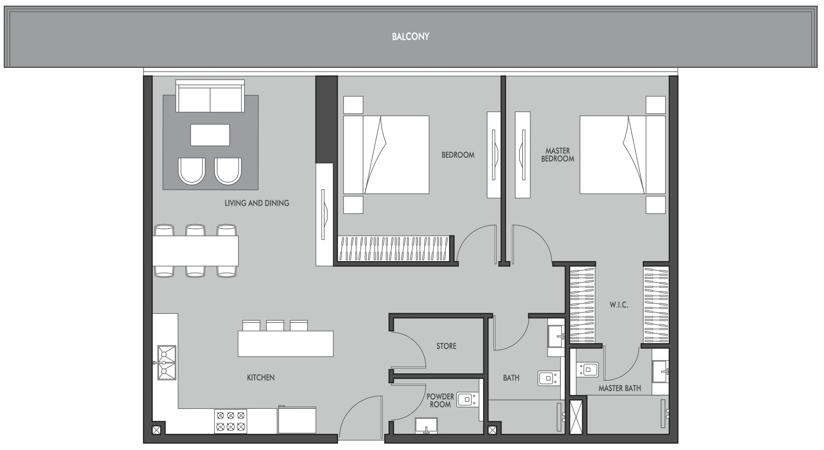
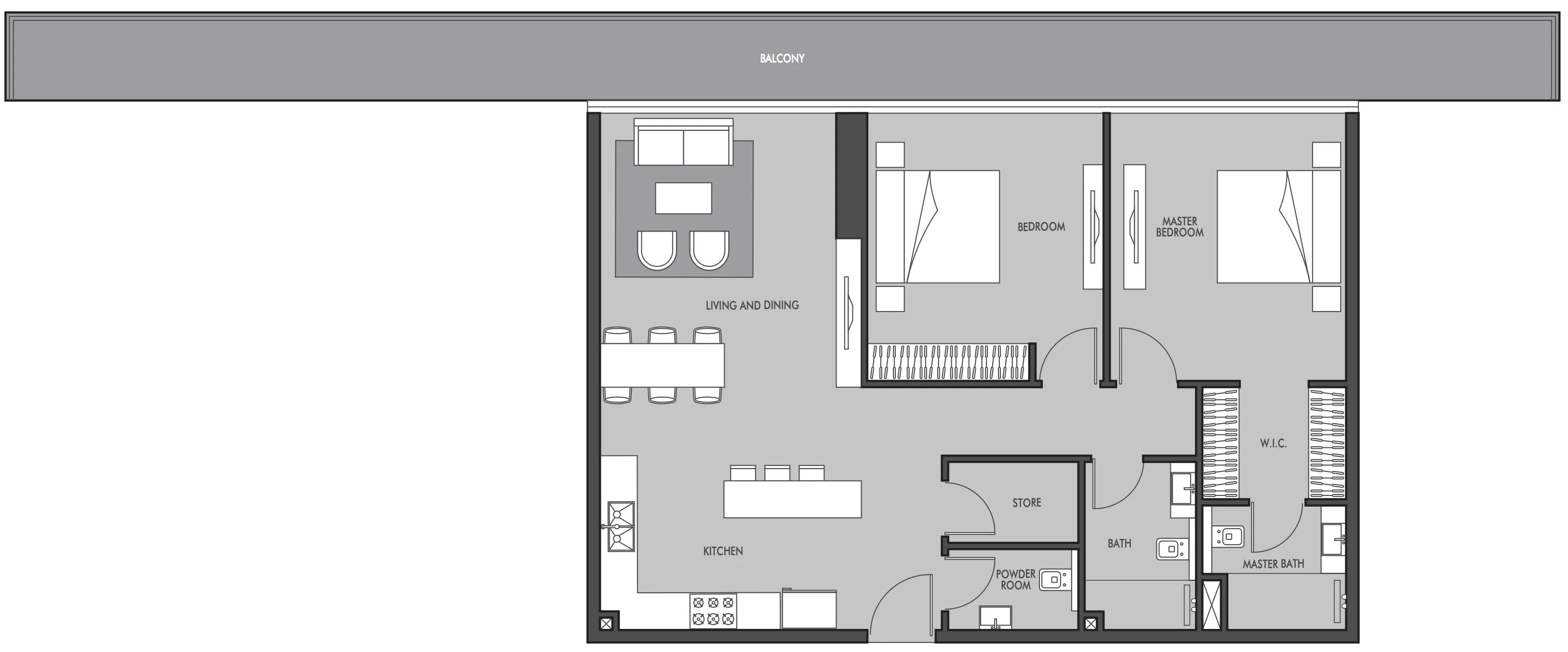
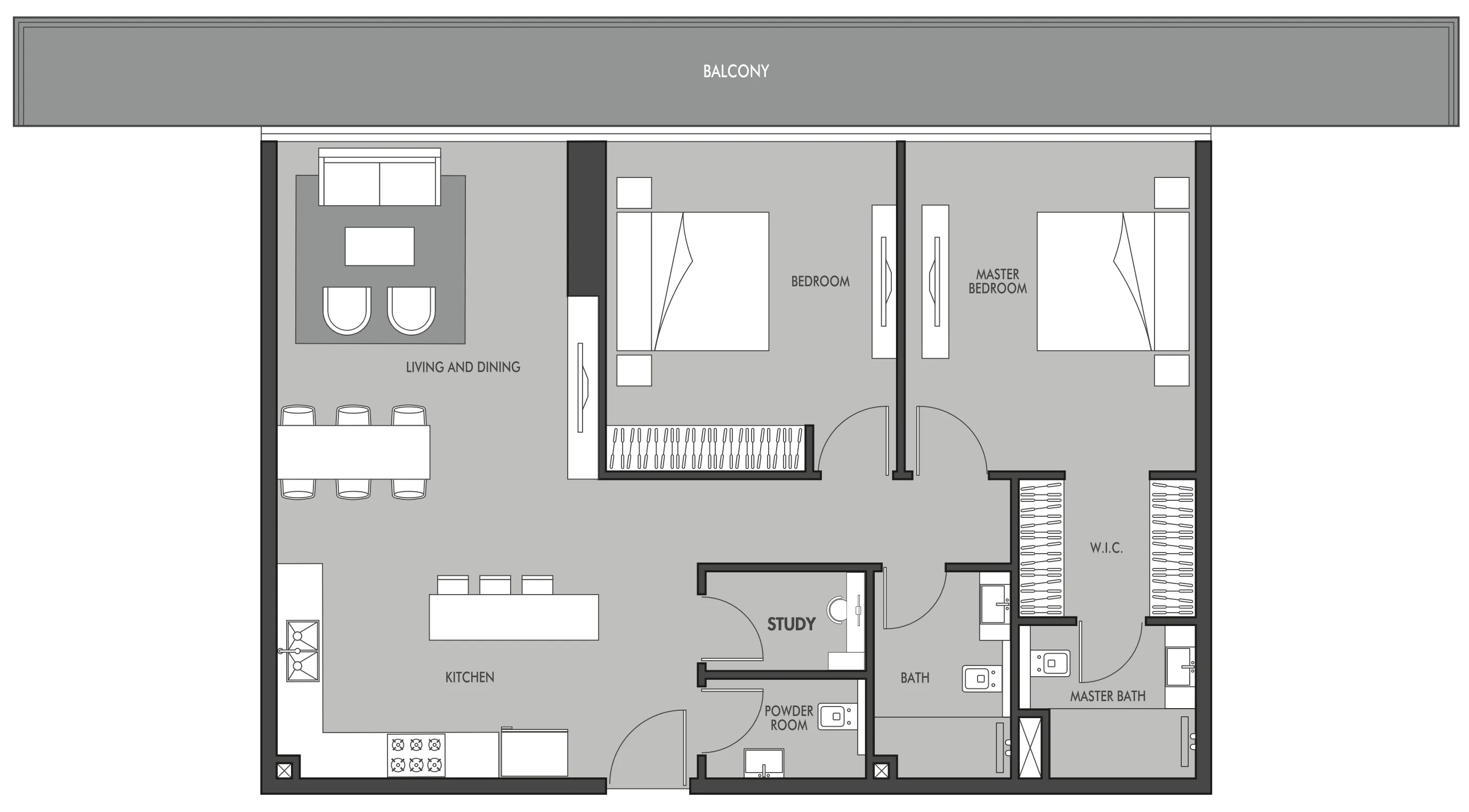
# Residences, layouts and specification
The range runs from a one-bedroom apartment at 976 sq ft through to three-bedroom homes at approximately 1,721 sq ft. Two-bedroom units form the majority of the offering and cover a broad spread of floor areas: the smallest two-bedrooms sit at around 1,294 sq ft, while larger two-bedroom formats reach 1,991 sq ft, a footprint that in many towers would comfortably accommodate a three-bedroom plan.
Three-bedroom apartments cluster tightly around 1,720 to 1,721 sq ft, priced from AED 2,325,000 to AED 2,400,000 depending on floor and aspect.
Kitchens are fitted with Siemens and Bosch appliances as standard. Beyond that, apartments are delivered with kitchen-only furnishing, leaving interior decisions entirely to the buyer. Service charges are set at 12 to 13 AED per sq ft annually.
# Amenities on site
The amenity list leans recreational rather than corporate, which suits the district's character.
Residents have access to swimming pools, an indoor gym, a game area, a BBQ area, a mini golf installation, and an outdoor cinema. Families with children are served by both indoor and outdoor kids' play areas. These are the facilities confirmed for the project; the list is focused rather than exhaustive, and the scale of the building means they will be shared among fewer than 70 households.
# Getting around from Dubai Sports City
Dubai Sports City connects to Sheikh Mohammed Bin Zayed Road, which puts Dubai Marina within roughly twenty minutes by car and Downtown Dubai within a similar window depending on traffic. The district also links to Hessa Street, a useful east-west corridor.
The Els Club golf course sits within the community itself, which matters both for residents who play and for the green-space character of the neighbourhood. The Dubai International Stadium, also within the district, draws cricket and other major sporting events throughout the year.
# Who this project suits and where it sits in the market
At an entry price of AED 1,491,000 for a one-bedroom, and with three-bedrooms topping out at AED 2,400,000, Golf Place sits in the mid-market band for Dubai new-build but offers floor areas that are above average for the price point. A two-bedroom at 1,991 sq ft for around AED 2,050,000 to AED 2,150,000 represents a scale of living that the same budget does not buy in JVC or Business Bay at current pricing.
The project will appeal to two distinct buyer types. End-users, particularly families and sports-minded residents, get direct proximity to the Els Club and a low-density building environment. Buy-to-let investors benefit from the floor areas, which tend to attract longer tenancies, and from service charges that are predictable at 12 to 13 AED per sq ft. With handover in Q2 2027 and construction at early stage, buyers entering now carry typical off-plan timing risk, though the escrow structure and DLD oversight provide the standard statutory protections.
Gallery
Residences
34 unit configurations available at Golf Place.
- Size
- 976
- Price (AED)
- AED 1,491,000
- Price (USD)
- $405,990
- Size
- 1,992
- Price (AED)
- AED 2,050,000–AED 2,060,000
- Price (USD)
- $558,202–$560,925
- Size
- 1,375
- Price (AED)
- AED 1,770,000
- Price (USD)
- $481,960
- Size
- 1,440
- Price (AED)
- AED 1,790,000
- Price (USD)
- $487,406
- Size
- 1,294–1,297
- Price (AED)
- AED 1,880,000–AED 1,890,000
- Price (USD)
- $511,912–$514,635
- Size
- 1,296
- Price (AED)
- AED 1,880,000–AED 1,890,000
- Price (USD)
- $511,912–$514,635
- Size
- 1,375
- Price (AED)
- AED 1,810,000
- Price (USD)
- $492,852
- Size
- 1,440
- Price (AED)
- AED 1,840,000–AED 1,880,000
- Price (USD)
- $501,021–$511,912
- Size
- 1,541
- Price (AED)
- AED 1,880,000–AED 1,900,000
- Price (USD)
- $511,912–$517,358
- Size
- 1,296
- Price (AED)
- AED 1,910,000–AED 1,950,000
- Price (USD)
- $520,081–$530,973
- Size
- 1,992
- Price (AED)
- AED 2,070,000–AED 2,120,000
- Price (USD)
- $563,648–$577,263
- Size
- 1,296
- Price (AED)
- AED 1,860,000
- Price (USD)
- $506,466
- Size
- 1,294–1,297
- Price (AED)
- AED 1,850,000–AED 1,860,000
- Price (USD)
- $503,744–$506,466
- Size
- 1,440
- Price (AED)
- AED 1,780,000
- Price (USD)
- $484,683
- Size
- 1,541
- Price (AED)
- AED 1,800,000–AED 1,810,000
- Price (USD)
- $490,129–$492,852
- Size
- 1,992
- Price (AED)
- AED 2,080,000–AED 2,100,000
- Price (USD)
- $566,371–$571,817
- Size
- 1,294–1,297
- Price (AED)
- AED 1,870,000
- Price (USD)
- $509,189
- Size
- 1,375
- Price (AED)
- AED 1,780,000–AED 1,800,000
- Price (USD)
- $484,683–$490,129
- Size
- 1,440
- Price (AED)
- AED 1,800,000–AED 1,820,000
- Price (USD)
- $490,129–$495,575
- Size
- 1,541
- Price (AED)
- AED 1,820,000–AED 1,840,000
- Price (USD)
- $495,575–$501,021
- Size
- 1,296
- Price (AED)
- AED 1,870,000
- Price (USD)
- $509,189
- Size
- 1,440
- Price (AED)
- AED 1,830,000
- Price (USD)
- $498,298
- Size
- 1,541
- Price (AED)
- AED 1,850,000–AED 1,860,000
- Price (USD)
- $503,744–$506,466
- Size
- 1,992
- Price (AED)
- AED 2,130,000
- Price (USD)
- $579,986
- Size
- 1,992
- Price (AED)
- AED 2,140,000–AED 2,150,000
- Price (USD)
- $582,709–$585,432
- Size
- 1,720
- Price (AED)
- AED 2,325,000–AED 2,340,000
- Price (USD)
- $633,083–$637,168
- Size
- 1,721
- Price (AED)
- AED 2,325,000–AED 2,340,000
- Price (USD)
- $633,083–$637,168
- Size
- 1,721
- Price (AED)
- AED 2,355,000
- Price (USD)
- $641,252
- Size
- 1,721
- Price (AED)
- AED 2,355,000
- Price (USD)
- $641,252
- Size
- 1,720
- Price (AED)
- AED 2,355,000
- Price (USD)
- $641,252
- Size
- 1,721
- Price (AED)
- AED 2,370,000–AED 2,385,000
- Price (USD)
- $645,336–$649,421
- Size
- 1,721
- Price (AED)
- AED 2,370,000
- Price (USD)
- $645,336
- Size
- 1,721
- Price (AED)
- AED 2,400,000
- Price (USD)
- $653,505
- Size
- 1,720
- Price (AED)
- AED 2,400,000
- Price (USD)
- $653,505
Payment plan
- Step 120%On booking
- Step 245%During construction
- Step 335%Upon Handover
- Step 120%On booking
- Step 235%During construction
- Step 310%Upon Handover
- Step 435%Within 35 months PH
Payment plan worked out
Enter a target price to see how the payment stages land against your budget.
| Stage | % | AED |
|---|---|---|
| On booking | 20% | AED 298,200 |
| During construction | 45% | AED 670,950 |
| Upon Handover | 35% | AED 521,850 |
| Total | 100% | AED 1,491,000 |
Indicative only. Your advisor will confirm the final numbers, including 4% DLD, trustee, admin, mortgage and developer-level charges.
Amenities








Documents
- Escrow number
- 0405885629906
- Service charge
- 12-13 AED/sqft
- Furnishing
- only kitchen
- Construction start
- 2024-12-09
- Construction end
- 2027-06-30
- Residences
- 69
- Buildings
- 1
- Readiness
- 18%
- Building
Studio, 1, 2 & 3 bedroom apartments
- 3 BR apartment2 spaces
- 2 BR apartment1 space
- 1 BR apartment1 space
- apartment1 space
Frequently asked
Who is the developer of Golf Place?+
Prestige One Developments
Where is Golf Place located?+
Golf Place is located in Dubai Sports City, Dubai, United Arab Emirates.
When is Golf Place handing over?+
Handover is scheduled for Q2 2027; the project is 18% complete.
What is the price of Golf Place?+
Prices at Golf Place currently range from AED 1,491,000 to AED 2,400,000.
Is Golf Place registered with escrow?+
Yes, Golf Place has escrow number 0405885629906 with the Dubai Land Department.
Request brochure, availability or a viewing.
A JRE advisor will respond within one business hour with the current brochure, floor plans, unit availability and payment plan for Golf Place.


