- From
- AED 990,660
- Status
- On sale
- Handover
- Q3 2028
- Size
- 515–1,592 sqft
- Residences
- 28
- Construction
- 0% complete
- Furnishing
- semi furnished
- Service charge
- 15 AED/sqft
- Buildings
- 1
ELAR1S Axis is a residential and mixed-use building by Object 1, situated in Jumeirah Village Triangle (JVT) in Dubai's western residential belt. The project delivers 28 semi-furnished residences across a single building, with handover scheduled for Q3 2028.
# The building and its position in JVT
Jumeirah Village Triangle occupies a mid-city position that sits comfortably between the density of Dubai Marina to the west and the commercial corridors feeding Sheikh Mohammed Bin Zayed Road. The district is low-rise by Dubai standards, defined by landscaped streets, parkland buffers and a largely residential character that attracts families and long-term residents rather than short-stay visitors.
ELAR1S Axis arrives into this context as a single building with a design language that, according to Object 1, plays on asymmetry and fluid geometric transitions. The developer draws on concepts of lightness and openness to shape the architectural expression. What that translates to at street level is a building with a distinct visual identity in a neighbourhood where most stock reads as generic mid-rise.
Construction is under way, with no units yet handed over.
# Residences: layouts, scale and specification
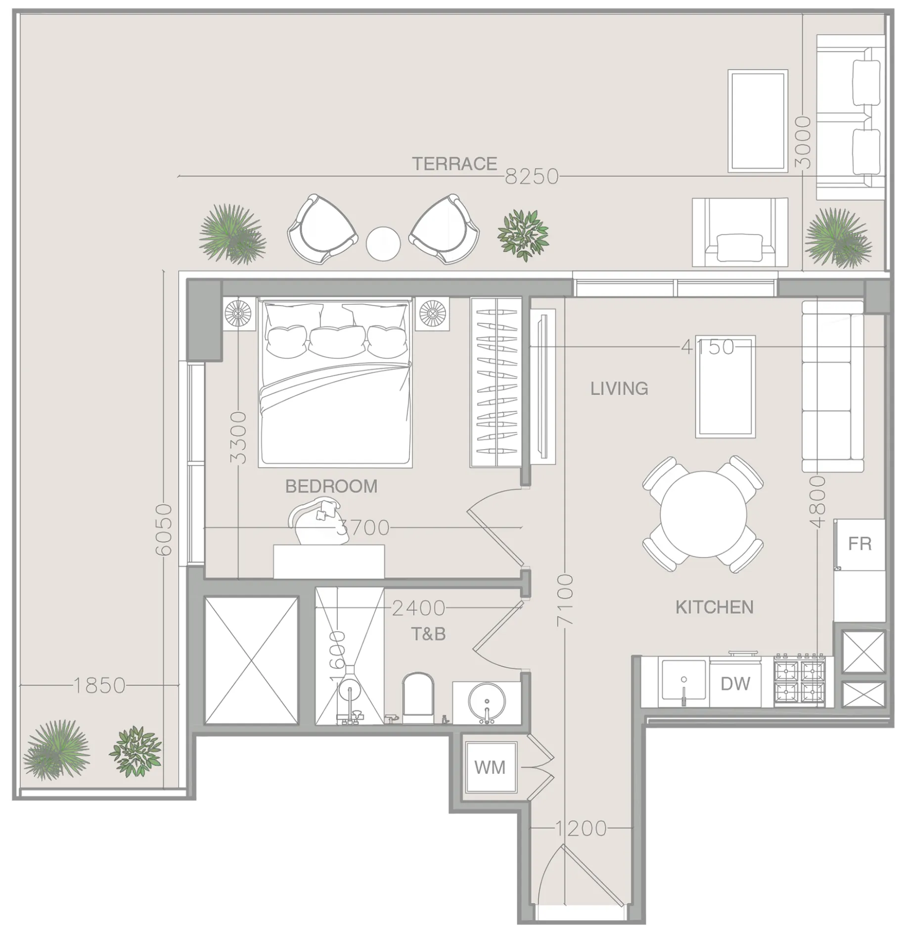
The 28 residences span studios and one-bedroom apartments, ranging from approximately 515 sq ft to just under 1,592 sq ft. That upper figure points to genuinely generous one-bedroom formats, some of which approach the footprint of a two-bedroom in comparable JVT buildings.
Studio pricing starts from around AED 990,000. One-bedroom units open at approximately AED 1.18 million and reach AED 2.27 million for the larger, upper-floor configurations.
All residences are delivered semi-furnished, with kitchens equipped as standard. The service charge is set at AED 15 per square foot annually. Buyers should note that no escrow registration number is currently published in the project data.
# Sizing the one-bedrooms
The one-bedroom range carries the most variety. Sizes cluster around 637 to 748 sq ft at the compact end, step up to around 700 sq ft across several floor plan variants, and then jump substantially to 967 sq ft, 1,431 sq ft, 1,537 sq ft and 1,591 sq ft at the upper end. The larger formats suggest units with significant living areas, dedicated office or dining space, and in some cases private outdoor terraces given the building's design.
# Amenities across the building
The amenity provision is practical and properly varied without being inflated. A swimming pool, kids' pool and outdoor crossfit area address both leisure and fitness needs. There is a gym indoors, and a BBQ area for communal outdoor use.
The clubhouse (listed in the project data as "clunhouse") and outdoor kids' play area indicate Object 1 has positioned ELAR1S Axis as a building where families can settle long term rather than simply pass through. An office terrace is a notable inclusion, reflecting how much JVT's working population values at-home workspace options.
# Location: distances and daily practicalities
Arcadia British School sits 1.7 km from the building, relevant to the international families who form a significant part of JVT's resident base. Triangle Supermarket is 1.8 km away, and Mediclinic Springs Clinic is within 2.9 km, covering the basic healthcare and daily convenience radius most buyers evaluate first.
Dubai Marina is 8.7 km, making it a reasonable drive rather than a neighbouring district. Downtown Dubai sits 29.3 km out, and Dubai International Airport is 39.2 km. The airport distance is not negligible and should be factored in by buyers who travel frequently for work. Al Maktoum International Airport, closer to the JVT corridor, is the more relevant hub for those watching Dubai's longer-term aviation infrastructure.
# Who ELAR1S Axis suits, and where it sits in the market
JVT has historically traded at a discount to nearby JVC and a meaningful discount to Dubai Marina, which makes it attractive to buyers seeking mid-market entry into a community that functions well as a primary residence rather than a short-term rental play. Object 1's project sits in that range: entry pricing below AED 1 million for a studio, and one-bedrooms available at various price points up to AED 2.27 million.
The larger one-bedroom formats, pushing past 1,500 sq ft, represent the more interesting proposition for buyers who might otherwise be looking at compact two-bedrooms elsewhere. At AED 2.19 to 2.27 million for those upper-floor, oversized units, the pricing reflects the size premium without reaching the levels seen in Marina or Downtown for comparable square footage.
For European or UK-based buyers seeking a foothold in Dubai at a price point below the headline Marina and Palm developments, ELAR1S Axis offers a practical calculation: a functioning community, a school already nearby, and a handover date in 2028 that aligns with Dubai's current construction pipeline cadence.
Gallery
Residences
24 unit configurations available at ELAR1S Axis.
- Size
- 953
- Price (AED)
- AED 1,430,355
- Price (USD)
- $389,477
- Size
- 515
- Price (AED)
- AED 990,660
- Price (USD)
- $269,750
- Size
- 518
- Price (AED)
- AED 997,006
- Price (USD)
- $271,478
- Size
- 883
- Price (AED)
- AED 1,541,418
- Price (USD)
- $419,718
- Size
- 1,537
- Price (AED)
- AED 2,189,228
- Price (USD)
- $596,113
- Size
- 1,432
- Price (AED)
- AED 2,039,603
- Price (USD)
- $555,371
- Size
- 1,592
- Price (AED)
- AED 2,267,641
- Price (USD)
- $617,465
- Size
- 968
- Price (AED)
- AED 1,740,900
- Price (USD)
- $474,036
- Size
- 701
- Price (AED)
- AED 1,259,370–AED 1,284,557
- Price (USD)
- $342,918–$349,777
- Size
- 637
- Price (AED)
- AED 1,187,634
- Price (USD)
- $323,385
- Size
- 641
- Price (AED)
- AED 1,262,078
- Price (USD)
- $343,656
- Size
- 742
- Price (AED)
- AED 1,320,543–AED 1,363,466
- Price (USD)
- $359,576–$371,263
- Size
- 748
- Price (AED)
- AED 1,325,487
- Price (USD)
- $360,922
- Size
- 641
- Price (AED)
- AED 1,326,821
- Price (USD)
- $361,285
- Size
- 700
- Price (AED)
- AED 1,259,190–AED 1,284,374
- Price (USD)
- $342,869–$349,727
- Size
- 700
- Price (AED)
- AED 1,284,374–AED 1,296,966
- Price (USD)
- $349,727–$353,156
- Size
- 701
- Price (AED)
- AED 1,297,151
- Price (USD)
- $353,206
- Size
- 637
- Price (AED)
- AED 1,228,469
- Price (USD)
- $334,504
- Size
- 641
- Price (AED)
- AED 1,286,812
- Price (USD)
- $350,391
- Size
- 742
- Price (AED)
- AED 1,333,859
- Price (USD)
- $363,201
- Size
- 748
- Price (AED)
- AED 1,351,727
- Price (USD)
- $368,067
- Size
- 641
- Price (AED)
- AED 1,286,812
- Price (USD)
- $350,391
- Size
- 637
- Price (AED)
- AED 1,177,030
- Price (USD)
- $320,498
- Size
- 700
- Price (AED)
- AED 1,296,966
- Price (USD)
- $353,156
Payment plan
- Step 120%On booking
- Step 250%During construction
- Step 330%Upon Handover
- Step 120%On booking
- Step 250%During construction
- Step 35%Upon Handover
- Step 425%Within 1 year PH
Payment plan worked out
Enter a target price to see how the payment stages land against your budget.
| Stage | % | AED |
|---|---|---|
| On booking | 20% | AED 198,132 |
| During construction | 50% | AED 495,330 |
| Upon Handover | 30% | AED 297,198 |
| Total | 100% | AED 990,660 |
Indicative only. Your advisor will confirm the final numbers, including 4% DLD, trustee, admin, mortgage and developer-level charges.
Amenities








Location
Set in JVT (Jumeirah Village Triangle), Dubai. Explore more in our JVT (Jumeirah Village Triangle) guide.
- Triangle Supermarket1.8 km
- Arcadia British School1.7 km
- Downtown Dubai29.3 km
- Dubai International Airport39.2 km
- Dubai Marina8.7 km
- Mediclinic Springs Clinic2.9 km
Documents
- Service charge
- 15 AED/sqft
- Furnishing
- semi furnished
- Construction start
- 2025-08-10
- Construction end
- 2028-12-31
- Residences
- 28
- Buildings
- 1
- Readiness
- 0%
- Tower
Studio & 1 bedroom apartments
- 1 BR apartment1 space
- apartment1 space
Frequently asked
Who is the developer of ELAR1S Axis?+
Object 1
Where is ELAR1S Axis located?+
ELAR1S Axis is located in JVT (Jumeirah Village Triangle), Dubai, United Arab Emirates.
When is ELAR1S Axis handing over?+
Handover is scheduled for Q3 2028; the project is 0% complete.
What is the price of ELAR1S Axis?+
Prices at ELAR1S Axis currently range from AED 990,660 to AED 2,267,641.
Is ELAR1S Axis registered with escrow?+
JRE will confirm escrow registration on request.
Request brochure, availability or a viewing.
A JRE advisor will respond within one business hour with the current brochure, floor plans, unit availability and payment plan for ELAR1S Axis.



