- From
- AED 1,124,999
- Status
- On sale
- Handover
- Q2 2026
- Size
- 655–1,062 sqft
- Residences
- 33
- Construction
- 28% complete
- Furnishing
- no
- Service charge
- 15 AED/sqft
- Buildings
- 1
Binghatti Elite is a residential tower under construction in Dubai Production City, developed by Binghatti and scheduled for completion in Q2 2026. The building comprises 33 residences across a single tower, with studios and one-bedroom apartments currently available for purchase.
# The tower and its position in Dubai Production City
Dubai Production City sits in the western corridor of the emirate, a district that has evolved steadily from its origins as a specialised media and publishing zone into a mixed-use residential community with its own retail, green space and service infrastructure. The area attracts residents who prioritise quieter surroundings over the density of central Dubai, without sacrificing access to the city's main arteries.
Binghatti Elite is the developer's first project in this district. At 33 units, it is a deliberately compact building, which tends to produce lower service-charge populations and a more contained ownership community. Construction progress stands at 28.44 per cent as of the current reporting period, with the project registered under escrow number 29171035.
Binghatti has built a substantial pipeline across Dubai over recent years, with a visual language that favours geometric facade articulation over the glass-curtain anonymity common to mid-market towers. Whether that approach translates fully to this site will be clearer as construction advances.
# Residences, layouts and specification
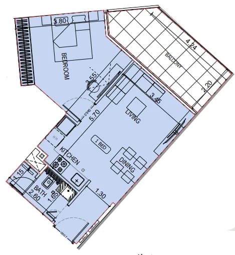
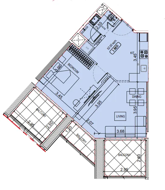
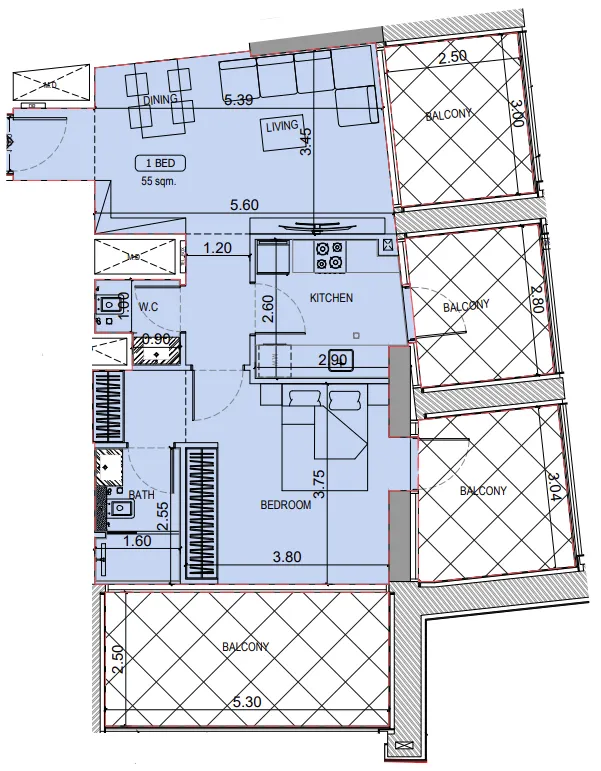
The building offers two formats: studios at approximately 377 square feet, and one-bedroom apartments ranging from around 654 square feet up to just over 1,061 square feet. That upper end of the one-bedroom range is generously sized by Dubai standards, where the category often caps out below 800 square feet in comparable buildings.
Pricing runs from AED 1,124,999 for the entry-level one-bedroom to AED 1,499,999 at the top of the range. Studios are listed from AED 818,749. Residences are delivered unfurnished, with the developer citing equipped kitchens and quality material finishes as standard. Service charges are set at AED 15 per square foot annually.
The spread of one-bedroom sizes, from 654 square feet to over 1,000 square feet, reflects meaningfully different floor plans rather than minor variations. Buyers in this category should review individual unit layouts, as the gap between the smallest and largest one-bedroom is substantial enough to affect both liveability and yield calculations.
# Amenities on site
The building's amenity provision is focused and practical. Residents have access to swimming pools, a poolside deck, jacuzzi, outdoor lounge areas, a jogging path, basketball court and a dedicated children's play area.
There is no spa, co-working space or concierge listed in the current specification. For a 33-unit building, the amenity set is proportionate: larger common facilities often become underused or poorly maintained in small towers where service-charge income is limited.
# Proximity to everyday infrastructure
Intima Park is 300 metres from the building, providing accessible green space without a car journey. City Centre Me'aisem, the district's main retail and dining anchor, sits 1.4 kilometres away.
Kids Kingdom Kindergarten is 600 metres from the site, a relevant detail for families with young children considering the one-bedroom units. Marina Beach is 13.7 kilometres distant, accessible in under 20 minutes under normal traffic. Downtown Dubai is 24.1 kilometres away. Al Maktoum International Airport, which will anchor Dubai South as the city's primary aviation hub in the years ahead, is 32.3 kilometres from the project.
# What this building offers, and to whom
At price points between AED 1.1 million and AED 1.5 million, Binghatti Elite sits in a range that attracts both end-users seeking a first Dubai residence and investors targeting the short- and mid-term rental market. Dubai Production City has seen sustained occupancy interest from professionals working in the media, publishing and light-industry sectors based nearby, which provides a reasonably defined tenant profile.
The compact unit count is a structural advantage for long-term owners. Buildings with fewer units typically maintain common areas more consistently and avoid the diffuse governance problems that affect larger developments. The Q2 2026 delivery timeline means buyers entering now face a construction period of roughly six to eight months from the current progress figure, a shorter remaining wait than many off-plan purchases in the city.
For international buyers unfamiliar with the district, Dubai Production City is not a prestige address in the way that Downtown or the Palm commands. The investment case here rests on relative affordability, manageable scale and proximity to improving infrastructure, particularly as Al Maktoum Airport's expansion reshapes the western corridor's long-term appeal.
Gallery
Residences
15 unit configurations available at Binghatti Elite.
- Size
- 377
- Price (AED)
- AED 818,749
- Price (USD)
- $222,940
- Size
- 377
- Price (AED)
- AED 818,749
- Price (USD)
- $222,940
- Size
- 377
- Price (AED)
- AED 818,749
- Price (USD)
- $222,940
- Size
- 705
- Price (AED)
- AED 1,162,499–AED 1,181,249
- Price (USD)
- $316,541–$321,647
- Size
- 793–793
- Price (AED)
- AED 1,212,499
- Price (USD)
- $330,156
- Size
- 655
- Price (AED)
- AED 1,124,999–AED 1,137,499
- Price (USD)
- $306,330–$309,734
- Size
- 676–676
- Price (AED)
- AED 1,149,999–AED 1,168,749
- Price (USD)
- $313,137–$318,243
- Size
- 712
- Price (AED)
- AED 1,187,499
- Price (USD)
- $323,348
- Size
- 855
- Price (AED)
- AED 1,224,999
- Price (USD)
- $333,559
- Size
- 1,042
- Price (AED)
- AED 1,499,999
- Price (USD)
- $408,440
- Size
- 705
- Price (AED)
- AED 1,181,249
- Price (USD)
- $321,647
- Size
- 793
- Price (AED)
- AED 1,212,499
- Price (USD)
- $330,156
- Size
- 1,062
- Price (AED)
- AED 1,249,999
- Price (USD)
- $340,367
- Size
- 867
- Price (AED)
- AED 1,224,999
- Price (USD)
- $333,559
- Size
- 1,042
- Price (AED)
- AED 1,499,999
- Price (USD)
- $408,440
Payment plan
- Step 120%On booking
- Step 250%During construction
- Step 330%Upon Handover
Payment plan worked out
Enter a target price to see how the payment stages land against your budget.
| Stage | % | AED |
|---|---|---|
| On booking | 20% | AED 225,000 |
| During construction | 50% | AED 562,500 |
| Upon Handover | 30% | AED 337,500 |
| Total | 100% | AED 1,124,999 |
Indicative only. Your advisor will confirm the final numbers, including 4% DLD, trustee, admin, mortgage and developer-level charges.
Amenities







Location
Set in Dubai Production City, Dubai. Explore more in our Dubai Production City guide.
- Kids Kingdom Kindergarten0.6 km
- Intima Park0.3 km
- City Centre Me'aisem1.4 km
- Marina Beach13.7 km
- Al Maktoum International Airport32.3 km
- Downtown Dubai24.1 km
Documents
- Escrow number
- 29171035
- Service charge
- 15 AED/sqft
- Furnishing
- no
- Construction start
- 2024-10-27
- Construction end
- 2026-07-31
- Residences
- 33
- Buildings
- 1
- Readiness
- 28%
- Building
Studio & 1 bedroom apartments
- 1 BR apartment1 space
- apartment1 space
Frequently asked
Who is the developer of Binghatti Elite?+
Binghatti
Where is Binghatti Elite located?+
Binghatti Elite is located in Dubai Production City, Dubai, United Arab Emirates.
When is Binghatti Elite handing over?+
Handover is scheduled for Q2 2026; the project is 28% complete.
What is the price of Binghatti Elite?+
Prices at Binghatti Elite currently range from AED 1,124,999 to AED 1,499,999.
Is Binghatti Elite registered with escrow?+
Yes, Binghatti Elite has escrow number 29171035 with the Dubai Land Department.
Request brochure, availability or a viewing.
A JRE advisor will respond within one business hour with the current brochure, floor plans, unit availability and payment plan for Binghatti Elite.



