
- From
- AED 856,374
- Status
- On sale
- Handover
- Q2 2028
- Size
- 477–672 sqft
- Residences
- 30
- Construction
- 0% complete
- Furnishing
- only kitchen
- Service charge
- 14-16 AED/sqft
- Buildings
- 1
Reef 998 is a 30-unit residential building by Reef Luxury Development, located within Dubailand Residence Complex and scheduled for completion in Q2 2028. The project offers studios and one-bedroom apartments, with kitchens fitted as standard and delivery targeted at buyers seeking an owner-occupier or investment-grade asset in one of Dubai's more affordable inland corridors.
# The building and its position in Dubailand Residence Complex
Dubailand Residence Complex sits in the broader Dubailand catchment, a sprawling residential and leisure zone that has attracted consistent developer attention over the past decade. Reef 998 is a single building, modest in scale at 30 units, which distinguishes it from the larger multi-block schemes that dominate the area. Construction is under way, with roughly 19 per cent of the build complete at the time of writing.
The project's defining architectural claim is a cooled-balcony system, described by the developer as the Sunken Balcony concept. The premise is straightforward: outdoor terraces are treated with cooling technology to remain usable through Dubai's summer months. For a city where balconies routinely become storage space between October and April, that proposition carries practical weight.
# Residences, layouts and specification
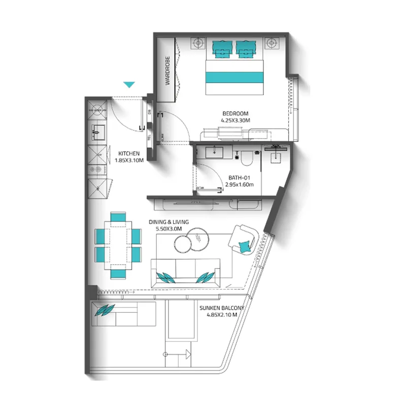
The unit mix runs from studios at approximately 412 to 478 square feet through to one-bedroom apartments at 623 to 672 square feet. Two-bedroom units reach around 1,005 to 1,011 square feet, and a single three-bedroom configuration is listed at just under 1,397 square feet.
Pricing for studios starts at AED 856,374 and reaches AED 875,549 at the upper end of the range. One-bedroom apartments are priced from AED 1,049,572 to AED 1,125,679. Two-bedroom units are listed at AED 1,564,692 to AED 1,573,646, with the three-bedroom at AED 2,048,803.
Kitchens come fitted. The broader specification is described as using high-quality materials, though buyers should request detailed finish schedules before proceeding. Service charges are projected at AED 14 to 16 per square foot annually.
# Amenities across the podium and rooftop
The amenity list is extensive relative to the building's scale. Residents have access to an infinity pool, a kids' pool, a dedicated children's play area, an outdoor cinema, a jogging track, yoga space, CrossFit area, and a co-working zone. The grounds also include a skate park, zip line, hammock forest area, sunken seating, floating seats, a BBQ area, and a cornhole court.
That range sits above what most 30-unit buildings in this price bracket typically deliver. Whether the long-term management of those facilities matches the specification is a question any buyer should put directly to the developer during due diligence.
# Getting around from DLRC: distances to consider
DLRC is an inland location, and buyers should approach the distance figures with clear expectations. Downtown Dubai is 19.1 kilometres away. Dubai International Airport is 24.5 kilometres. Jumeira Public Beach is 24 kilometres. Nad Al Sheba Park, a popular community green space, is 12.1 kilometres out. The nearest listed school, GEMS First Point School in The Villa, is 2.4 kilometres away, which is a meaningful positive for families.
These are car-dependent distances. DLRC is not a walk-to-metro neighbourhood, and any buyer accustomed to central urban living should factor commute time into their assessment rather than distance alone.
# Who this building suits and where it sits in the market
At AED 856,000 at entry, Reef 998 occupies the lower band of Dubai's freehold market, competing with comparable off-plan stock in Arjan, Jumeirah Village Circle, and the broader Dubailand corridor. The 19 per cent construction progress against a Q2 2028 delivery date leaves a meaningful runway, which suits buyers who are comfortable with off-plan timelines and the associated escrow protections (escrow account 19429442 is registered with the relevant authority).
The cooled-balcony specification gives the project a differentiator that is easier to communicate to end-users than to institutional investors. For an owner-occupier, particularly a family with children at GEMS First Point School nearby, the combination of space, amenity depth, and price point is coherent. For a pure yield investor, the calculation depends on rental demand in DLRC at the time of handover, a market that has strengthened but remains less liquid than Dubai Marina or Business Bay. The building's small unit count is a double-edged factor: it limits community scale but also reduces the supply pressure that larger developments create within their own postcodes.
Gallery
Residences
17 unit configurations available at Reef 998.
- Size
- 478
- Price (AED)
- AED 858,381
- Price (USD)
- $233,732
- Size
- 477
- Price (AED)
- AED 856,374–AED 873,501
- Price (USD)
- $233,185–$237,849
- Size
- 477
- Price (AED)
- AED 856,374–AED 873,501
- Price (USD)
- $233,185–$237,849
- Size
- 477
- Price (AED)
- AED 856,374–AED 873,501
- Price (USD)
- $233,185–$237,849
- Size
- 477
- Price (AED)
- AED 856,374
- Price (USD)
- $233,185
- Size
- 478
- Price (AED)
- AED 858,381
- Price (USD)
- $233,732
- Size
- 478
- Price (AED)
- AED 858,381–AED 875,549
- Price (USD)
- $233,732–$238,406
- Size
- 478
- Price (AED)
- AED 858,381
- Price (USD)
- $233,732
- Size
- 412
- Price (AED)
- AED 759,566
- Price (USD)
- $206,825
- Size
- 672
- Price (AED)
- AED 1,103,607–AED 1,125,679
- Price (USD)
- $300,505–$306,515
- Size
- 623
- Price (AED)
- AED 1,049,572
- Price (USD)
- $285,792
- Size
- 645
- Price (AED)
- AED 1,074,144
- Price (USD)
- $292,483
- Size
- 1,005
- Price (AED)
- AED 1,564,692
- Price (USD)
- $426,056
- Size
- 1,005
- Price (AED)
- AED 1,564,692
- Price (USD)
- $426,056
- Size
- 1,002
- Price (AED)
- AED 1,565,288
- Price (USD)
- $426,218
- Size
- 1,011
- Price (AED)
- AED 1,573,646
- Price (USD)
- $428,494
- Size
- 1,397
- Price (AED)
- AED 2,048,803
- Price (USD)
- $557,876
Payment plan
- Step 120%On booking
- Step 240%During construction
- Step 340%Upon Handover
- Step 120%On booking
- Step 250%During construction
- Step 31%Upon Handover
- Step 429%Within 29 months PH
- Step 1100%On booking
Payment plan worked out
Enter a target price to see how the payment stages land against your budget.
| Stage | % | AED |
|---|---|---|
| On booking | 20% | AED 171,275 |
| During construction | 40% | AED 342,550 |
| Upon Handover | 40% | AED 342,550 |
| Total | 100% | AED 856,374 |
Indicative only. Your advisor will confirm the final numbers, including 4% DLD, trustee, admin, mortgage and developer-level charges.
Amenities


















Location
Set in Dubailand Residence Complex, Dubai. Explore more in our Dubailand Residence Complex guide.
- GEMS First Point School, The Villa2.4 km
- Oasis Mall22.4 km
- Nad Al Sheba Park12.1 km
- Jumeira Public Beach24 km
- Dubai International Airport24.5 km
- Downtown Dubai19.1 km
Documents
- Escrow number
- 19429442
- Service charge
- 14-16 AED/sqft
- Furnishing
- only kitchen
- Construction start
- 2025-06-01
- Construction end
- 2028-06-30
- Residences
- 30
- Buildings
- 1
- Readiness
- 0%
- Building20 floors
Studio, 1, 2 & 3 bedroom apartments
- 3 BR apartment2 spaces
- 2 BR apartment1 space
- 1 BR apartment1 space
- apartment1 space
Frequently asked
Who is the developer of Reef 998?+
Reef Luxury Development
Where is Reef 998 located?+
Reef 998 is located in Dubailand Residence Complex, Dubai, United Arab Emirates.
When is Reef 998 handing over?+
Handover is scheduled for Q2 2028; the project is 0% complete.
What is the price of Reef 998?+
Prices at Reef 998 currently range from AED 856,374 to AED 1,125,679.
Is Reef 998 registered with escrow?+
Yes, Reef 998 has escrow number 19429442 with the Dubai Land Department.
Request brochure, availability or a viewing.
A JRE advisor will respond within one business hour with the current brochure, floor plans, unit availability and payment plan for Reef 998.


