
Grandala
- From
- AED 0
- Status
- Sold out
- Handover
- Q4 2025
- Size
- from 0 sqft
- Residences
- 15
- Construction
- 40% complete
- Furnishing
- yes
- Service charge
- 15 AED/sqft
- Buildings
- 1
Grandala is a boutique residential building by Palladium Prime Real Estate Development, rising in Al Satwa's Jumeirah Garden City district and scheduled to complete in Q4 2025. All 15 furnished apartments are currently out of stock, though the project remains relevant for buyers tracking secondary-market availability as construction advances.
# A Small Building in a District Reshaping Its Identity
Jumeirah Garden City is a medium-density, mixed-use masterplan owned by Meraas, laid out parallel to Sheikh Zayed Road in the area historically known as Al Satwa. It is freehold, which matters in a corridor that was once almost entirely unavailable to international buyers. The neighbourhood mixes residential, retail, hotel and public-park uses, and it sits close enough to the central city that addresses here command genuine attention from tenants and end-users alike.
Grandala is a single building, not a community. Fifteen residences only. That scale positions it firmly in the boutique segment, where residents tend to value quiet common areas and a shorter lift queue over the resort-style sprawl of larger towers.
Construction reached roughly 40 per cent completion at the time of writing, with practical completion expected by the end of 2025.
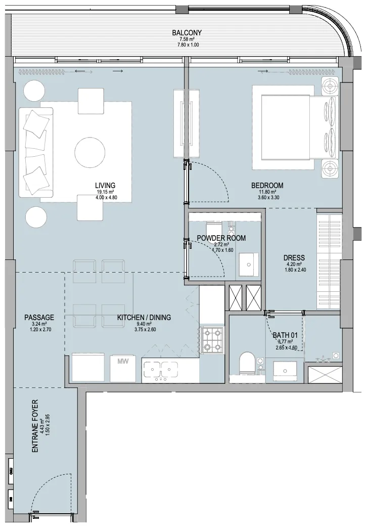
# Residences: Layouts, Sizes and Specification
The building offers three typologies: studios, one-bedroom apartments and a single two-bedroom unit.
Studios sit at 535 square feet and were priced at AED 1.1 million. One-bedrooms come in two size bands: 805 square feet (AED 1.72 million to AED 1.82 million) and 921 square feet (AED 1.79 million to AED 1.89 million), a meaningful difference in floor area that would have translated to noticeably different living arrangements. The two-bedroom apartment at 2,098 square feet commanded AED 2.9 million, a format that feels palatial relative to most comparable addresses in this price range.
All apartments are delivered fully furnished, with modular, space-saving furniture throughout. The developer specifies marble and stone flooring finishes, along with advanced HVAC systems. Kitchens are fitted with retractable walls, allowing the cooking and dining space to open into a broader entertaining area, a practical feature in the mid-sized one-bedroom layouts where flexibility counts.
Service charges are set at AED 15 per square foot.
# Amenities: Four Offerings, No Padding
Grandala keeps its amenity list short: a swimming pool, gym, outdoor cinema and billiards room.
This is not a building selling buyers a long list of facilities that go unused. The outdoor cinema is the standout, the kind of feature that appeals specifically to younger professionals and couples. Combined with the pool and gym, the offering covers daily needs without excess operational cost, which tends to keep service charges predictable over time.
# Position in the City
Al Satwa and Jumeirah Garden City occupy an advantageous central position. Sheikh Zayed Road is directly accessible, placing Dubai Downtown, Business Bay and DIFC within a short drive. The Financial Centre Metro Station brings the city's rapid-transit network within reach on foot, a detail that matters to tenants commuting without a car and therefore matters to investors assessing yield sustainability.
City Walk, Bur Dubai and Jumeirah Beach are all reachable within a similar radius.
# The Case for Boutique Central Stock at This Scale
Grandala appeals to a specific buyer. Not someone assembling a portfolio of identical units across multiple buildings, but someone seeking a compact, well-specified address in a freehold district that is still in the process of maturing. Investors who entered Jumeirah Garden City early have benefited from the district's growing tenant profile, which skews toward professionals working along the Sheikh Zayed Road corridor.
With 15 units, the building's resale market will always be thin, which cuts both ways. Scarcity can support pricing. It also limits exit liquidity. Buyers considering secondary-market entry should weigh that against the specification, the location and the completion timeline before committing.
Gallery
Residences
4 unit configurations available at Grandala.
- Size
- 536
- Price (AED)
- AED 1,100,000
- Price (USD)
- $299,523
- Size
- 805–805
- Price (AED)
- AED 1,720,000–AED 1,820,000
- Price (USD)
- $468,345–$495,575
- Size
- 922
- Price (AED)
- AED 1,790,000–AED 1,890,000
- Price (USD)
- $487,406–$514,635
- Size
- 2,099
- Price (AED)
- AED 2,900,000
- Price (USD)
- $789,652
Payment plan
- Step 160%On booking
- Step 240%Upon Handover
Payment plan worked out
Enter a target price to see how the payment stages land against your budget.
| Stage | % | AED |
|---|---|---|
| On booking | 60% | AED 0 |
| Upon Handover | 40% | AED 0 |
| Total | 100% | AED 0 |
Indicative only. Your advisor will confirm the final numbers, including 4% DLD, trustee, admin, mortgage and developer-level charges.
Amenities




Documents
- Escrow number
- 12900170820002
- Service charge
- 15 AED/sqft
- Furnishing
- yes
- Construction start
- 2024-06-01
- Construction end
- 2026-03-31
- Residences
- 15
- Buildings
- 1
- Readiness
- 40%
- Building
Studio, 1 & 2 bedroom apartments
- 2 BR apartment1 space
- 1 BR apartment1 space
- apartment1 space
Frequently asked
Who is the developer of Grandala?+
Palladium Prime Real Estate Development
Where is Grandala located?+
Grandala is located in Al Satwa, Dubai, United Arab Emirates.
When is Grandala handing over?+
Handover is scheduled for Q4 2025; the project is 40% complete.
What is the price of Grandala?+
Prices at Grandala start from AED 0.
Is Grandala registered with escrow?+
Yes, Grandala has escrow number 12900170820002 with the Dubai Land Department.
Request brochure, availability or a viewing.
A JRE advisor will respond within one business hour with the current brochure, floor plans, unit availability and payment plan for Grandala.


