- From
- AED 2,052,638
- Status
- On sale
- Handover
- TBC
- Size
- 770–1,334 sqft
- Residences
- 15
- Construction
- 0% complete
- Furnishing
- semi furnished
- Service charge
- 18 AED/sqft
- Buildings
- 1
FLU1D ONE is a residential building by Object 1, currently under construction on Palm Deira, Dubai's most recently established island district. The project comprises 15 semi-furnished residences across a single tower, with one- and two-bedroom layouts priced from approximately AED 2.05 million.
# The building and its position on Palm Deira
Palm Deira occupies the northern coastal edge of Dubai, part of the broader Dubai Islands group, a collection of five man-made landmasses developed along the emirate's historic shoreline. The area is still taking shape, which is both a practical consideration for buyers and a structural argument for early entry: land values on comparable island addresses have historically appreciated as infrastructure matures and the residential population grows.
FLU1D ONE sits within this emerging context as a boutique proposition. Fifteen units across one building is a deliberately small count, which affects both the ownership experience and the secondary market. Smaller buildings in Dubai tend to carry stronger community character and, in practice, easier management.
The architecture draws on the coastal setting, with a design language the developer describes as fluid and movement-oriented. Floor-to-ceiling glazing features throughout, orienting interiors toward natural light and open-sky views.
# Residences: layouts, sizing and specification
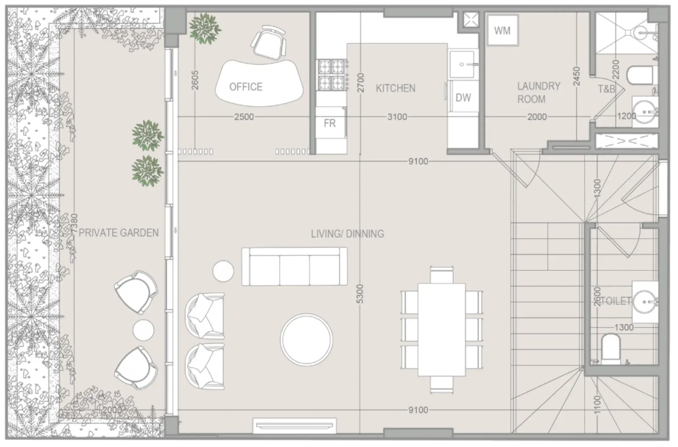
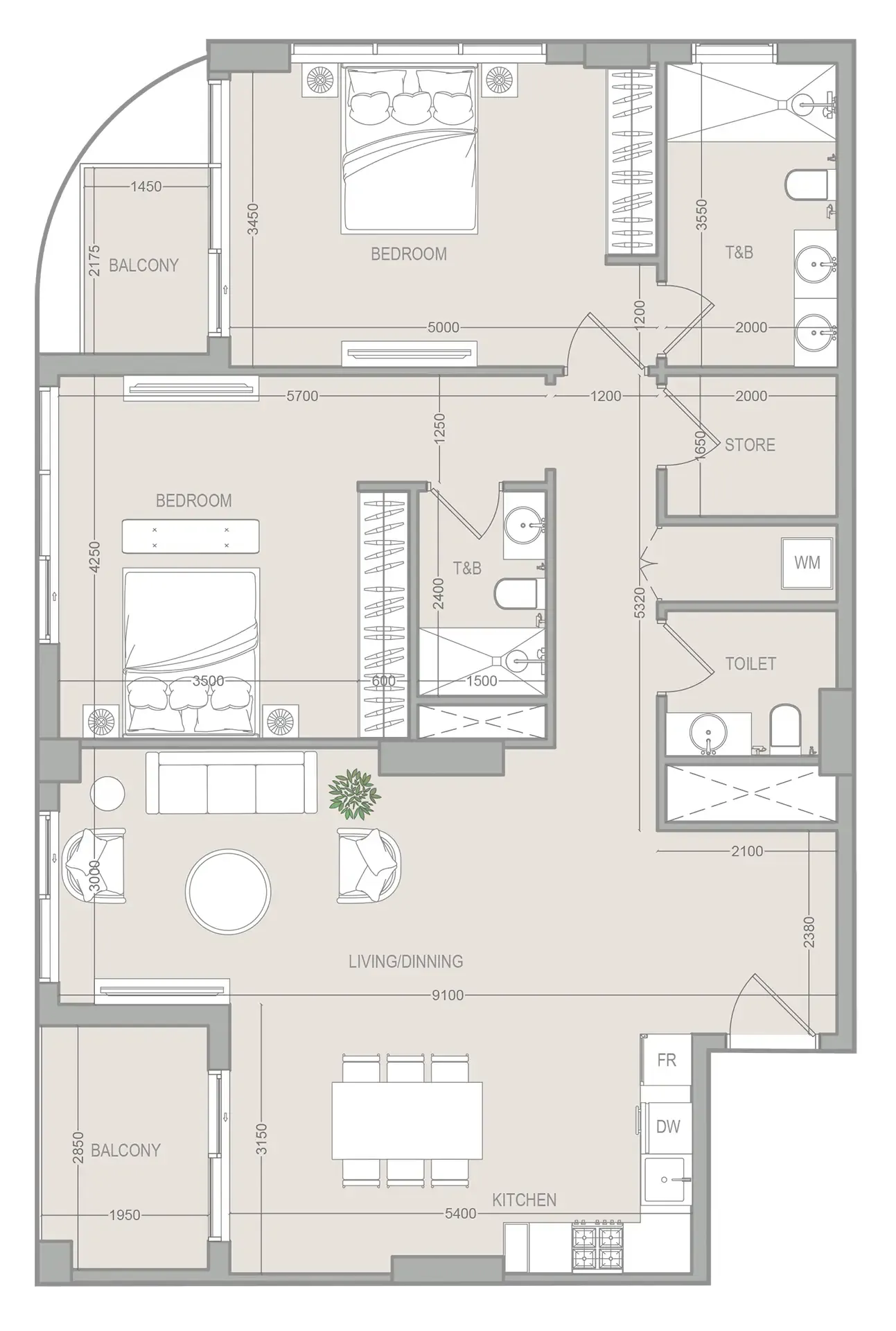
The building offers one- and two-bedroom apartments. One-bedroom units range from 661 to 817 square feet, priced between AED 2.03 million and AED 2.18 million. Two-bedroom residences span a wider band, from approximately 1,068 to 1,894 square feet, with prices from AED 2.78 million to AED 4.45 million at the upper end of the range.
All residences are delivered semi-furnished. Kitchens arrive with fitted cabinetry and contemporary finishes; interiors follow a clean, pale palette with premium surface materials. The specification is consistent with what buyers expect at this price tier in Dubai, without the layered customisation options available in bespoke or ultra-luxury schemes.
Service charges are fixed at AED 18 per square foot annually, a figure worth modelling carefully for investors calculating net yields.
# Amenities and the residential offer
The amenity programme is focused rather than extensive. Residents have access to a swimming pool, a dedicated kids' pool, a gym, and an arcade and games zone. There is no hotel component, no spa, no branded food and beverage. This is a purely residential building, and the amenity set reflects that.
For buyers seeking a quieter ownership experience without the operational complexity of a resort-style scheme, that restraint has genuine appeal. The pool deck and gym cover the practical requirements for day-to-day living; the arcade zone signals a design choice to accommodate families alongside single occupants or couples.
# Access and the Palm Deira address
Palm Deira connects to the mainland via road infrastructure that links northward toward Deira and the older commercial quarters of Dubai, and southward toward the broader city corridor. The district is positioned close to Dubai International Airport, which is a material advantage for internationally mobile residents and a factor that supports short-term rental demand.
The surrounding Dubai Islands masterplan includes allocations for hotels, retail and leisure, though the timing of those completions remains subject to broader development schedules. Buyers acquiring now are purchasing into the infrastructure build phase, which requires a longer time horizon than established districts such as Dubai Marina or Downtown.
# What the project represents for a particular kind of buyer
FLU1D ONE addresses a buyer who wants coastal positioning in Dubai without the density or price levels that define Palm Jumeirah, and who is comfortable holding through the completion of a still-forming district. The entry point, just above AED 2 million for a one-bedroom, places it within reach of investors seeking yield-oriented exposure to an emerging address, as well as end-users drawn to smaller-scale residential buildings.
The 15-unit count is the defining characteristic. It limits the competitive resale pool within the building itself and creates the kind of ownership environment that larger towers cannot replicate. Whether that matters depends entirely on what the buyer is optimising for: yield, lifestyle, or a position in one of the few parts of Dubai where land supply is genuinely finite.
Gallery
Residences
14 unit configurations available at FLU1D ONE.
- Size
- 662
- Price (AED)
- AED 2,029,973
- Price (USD)
- $552,749
- Size
- 770
- Price (AED)
- AED 2,052,638
- Price (USD)
- $558,921
- Size
- 770
- Price (AED)
- AED 2,052,638–AED 2,112,668
- Price (USD)
- $558,921–$575,266
- Size
- 817
- Price (AED)
- AED 2,179,244
- Price (USD)
- $593,395
- Size
- 1,131
- Price (AED)
- AED 2,862,037
- Price (USD)
- $779,315
- Size
- 1,131
- Price (AED)
- AED 2,862,037
- Price (USD)
- $779,315
- Size
- 1,131
- Price (AED)
- AED 2,945,743
- Price (USD)
- $802,108
- Size
- 1,068
- Price (AED)
- AED 2,783,095
- Price (USD)
- $757,820
- Size
- 1,068
- Price (AED)
- AED 2,783,095
- Price (USD)
- $757,820
- Size
- 1,894
- Price (AED)
- AED 4,451,699
- Price (USD)
- $1,212,171
- Size
- 1,334
- Price (AED)
- AED 3,200,760
- Price (USD)
- $871,547
- Size
- 1,293
- Price (AED)
- AED 3,272,566
- Price (USD)
- $891,100
- Size
- 1,293
- Price (AED)
- AED 3,272,566
- Price (USD)
- $891,100
- Size
- 1,293
- Price (AED)
- AED 3,368,279
- Price (USD)
- $917,162
Payment plan
- Step 120%On booking
- Step 230%During construction
- Step 350%Upon Handover
Payment plan worked out
Enter a target price to see how the payment stages land against your budget.
| Stage | % | AED |
|---|---|---|
| On booking | 20% | AED 410,528 |
| During construction | 30% | AED 615,791 |
| Upon Handover | 50% | AED 1,026,319 |
| Total | 100% | AED 2,052,638 |
Indicative only. Your advisor will confirm the final numbers, including 4% DLD, trustee, admin, mortgage and developer-level charges.
Amenities
Documents
- Service charge
- 18 AED/sqft
- Furnishing
- semi furnished
- Construction end
- 2028-06-30
- Residences
- 15
- Buildings
- 1
- Readiness
- 0%
- Building8 floors
1, 2, 2.5 & 3.5 bedroom apartments
- 1 BR apartment1 space
- 2 BR apartment1 space
- 2.5 BR apartment1 space
- 3.5 BR apartment2 spaces
Frequently asked
Who is the developer of FLU1D ONE?+
Object 1
Where is FLU1D ONE located?+
FLU1D ONE is located in Palm Deira, Dubai, United Arab Emirates.
When is FLU1D ONE handing over?+
Handover is scheduled for TBC; the project is 0% complete.
What is the price of FLU1D ONE?+
Prices at FLU1D ONE currently range from AED 2,052,638 to AED 3,200,760.
Is FLU1D ONE registered with escrow?+
JRE will confirm escrow registration on request.
Request brochure, availability or a viewing.
A JRE advisor will respond within one business hour with the current brochure, floor plans, unit availability and payment plan for FLU1D ONE.



